Quick Links

Click on the Image thumbnails on the left to view the documents. Use the controls on the images to navigate through the gallery. To enlarge the image click on the enlarge icon. Click on the image again to return to the gallery.

Click here to download a PDF of this section

Click here to return to the Section Items page

 

 

Archive Folder Section Items

Section 9 - A Vicarage Lane, Village Hall, New Road

Description of 9-A Vicarage Lane

1. & 2. Describes the development of properties on land formerly occupied by farm buildings belonging to Prospect Farm at the upper end of Vicarage Lane during the second half of the 20th century. A photo on page 2 dated 1998 shows the Barn Conversion and the new No.5 Windmill Road.

3. A sketch of the Prospect Farm buildings on Windmill Road. The Dutch barn on the right probably straddled the boundary fence between 7 Windmill Road and 1 Prospect Bank.

4. Views of Field House on the corner of Windmill Road and Toulston Lane and of the site of the former farm pond opposite the top end of Vicarage Lane.

5. Another view of Field House showing the small barn next door to it on Windmill Road.

6. A rather faint sketch of the churchyard, Back Lane and Vicarage Lane showing the locations of Prospect Farm Cottage, Prospect Farm buildings and Field House buildings.

7. A photo of Prospect Farm Cottage with the 1990s extension and also of the nearby foundations of an old row of cottages that were demolished after 1850.

8. Photographs of High Barn and High Toynton taken about 2000.

9. Photo taken about 2000 of Lambert House, built 1990, on a small allotment behind the double cottage facing the churchyard.

10. Photo taken about 2000 of the two cottages on Vicarage Lane at its upper junction with Back Lane, showing also the adjoining small barn.

11. An old black & white photo of the barn mentioned in item 10.

12. Photos, about 2002, of The Old Vicarage and the new vicarage that replaced it in 1963, the latter also becoming a private residence in 2001.

13. & 14. A letter dated 1999 from Anne Palmer, resident in The Old Vicarage, giving details of the history of the building.

15. A copy of two pages of the book by G.E. Kirk (1936) on All Saints Bramham with information on the church valuables in 1771, details of 'The Vicarage House' from 1416 to 1931 and 'Visitation Records' covering the period 1416 to 1590.

16. - 19. A sales brochure for the New Vicarage, sold in 1991 for £200,000.

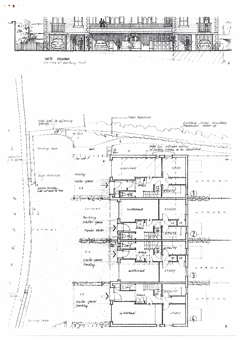
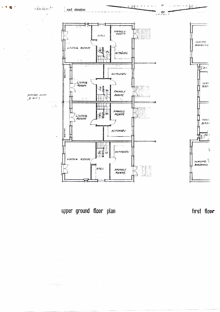
20. - 29. Correspondence in 2001 concerning the proposal to demolish the New vicarage and replace it by a terrace of four 3-storey flats.

30. - 33. A sales brochure for Bardon House, formerly The New Vicarage, at an asking price of £435,000in 2002.

34. The Vicarage Institute, built about 1902 for use of the church congregation for recreation and as a bath house. It is now a private residence named Fiveways. An early photo is shown with a few lines on its history.

35. A view of the church looking westwards along its south side taken at about the early in the 20th century well before dwellings were built along New Road in 1968 or along the adjoining part of Clifford Road.

 

 

 

Go Back
Useful links ....

Bramham Village Website
Bramham Park
Bramham Parish Council
Historic Britain
Bramham Horse Trials
Luminarium - Henry Percy
Old Maps of Bramham

More Links ....

Leeds Music Festival Website
Download Adobe Acrobat Reader

Menu Items ....

Where We Are Map
Search The Site
Contact Us
Copyright
Data Protection
Terms and Conditions
Accessibility

" "   Protected by Copyscape DMCA Copyright Detector